Gardens

Update 25-Nov-2025: Gardens Master Plans

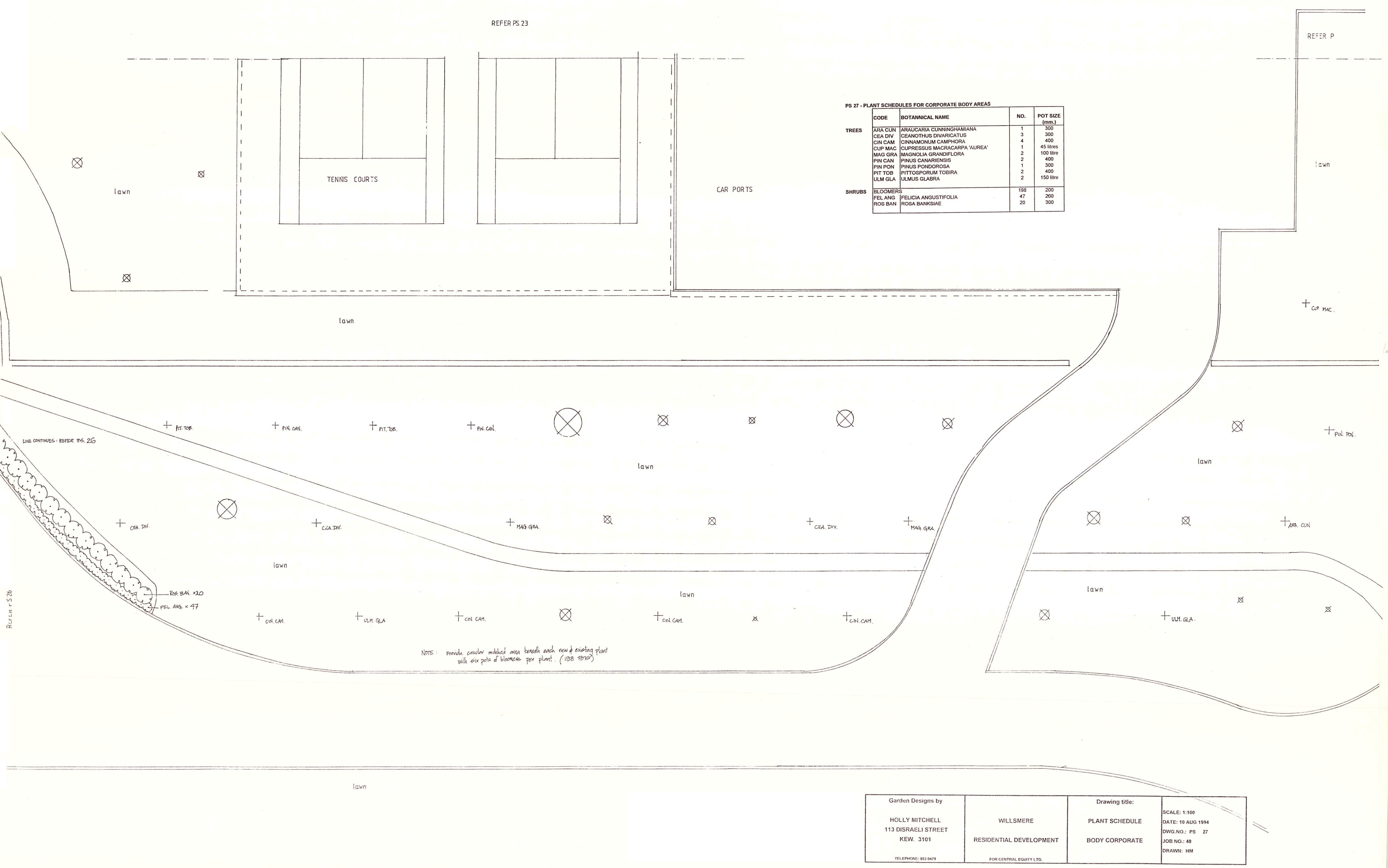
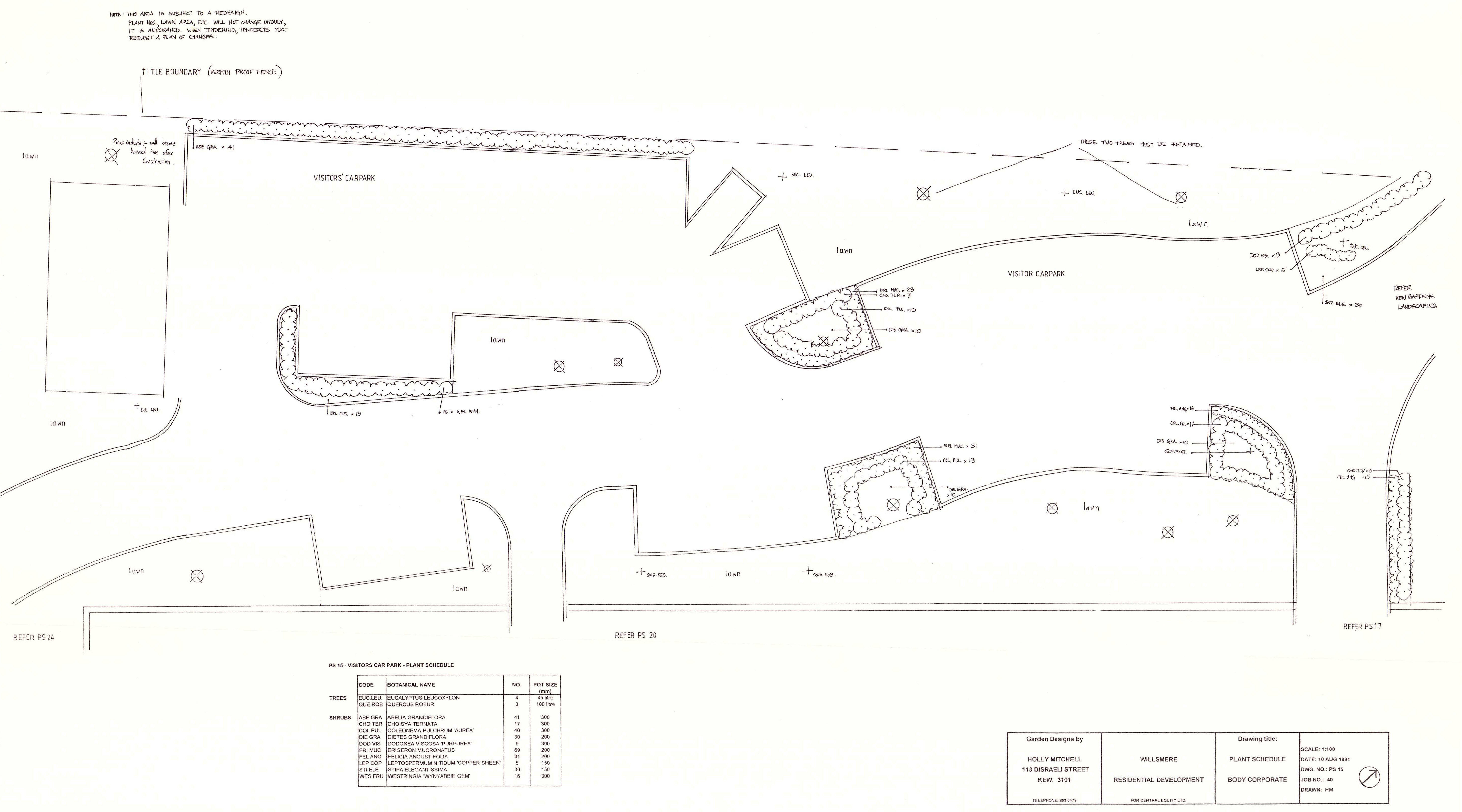
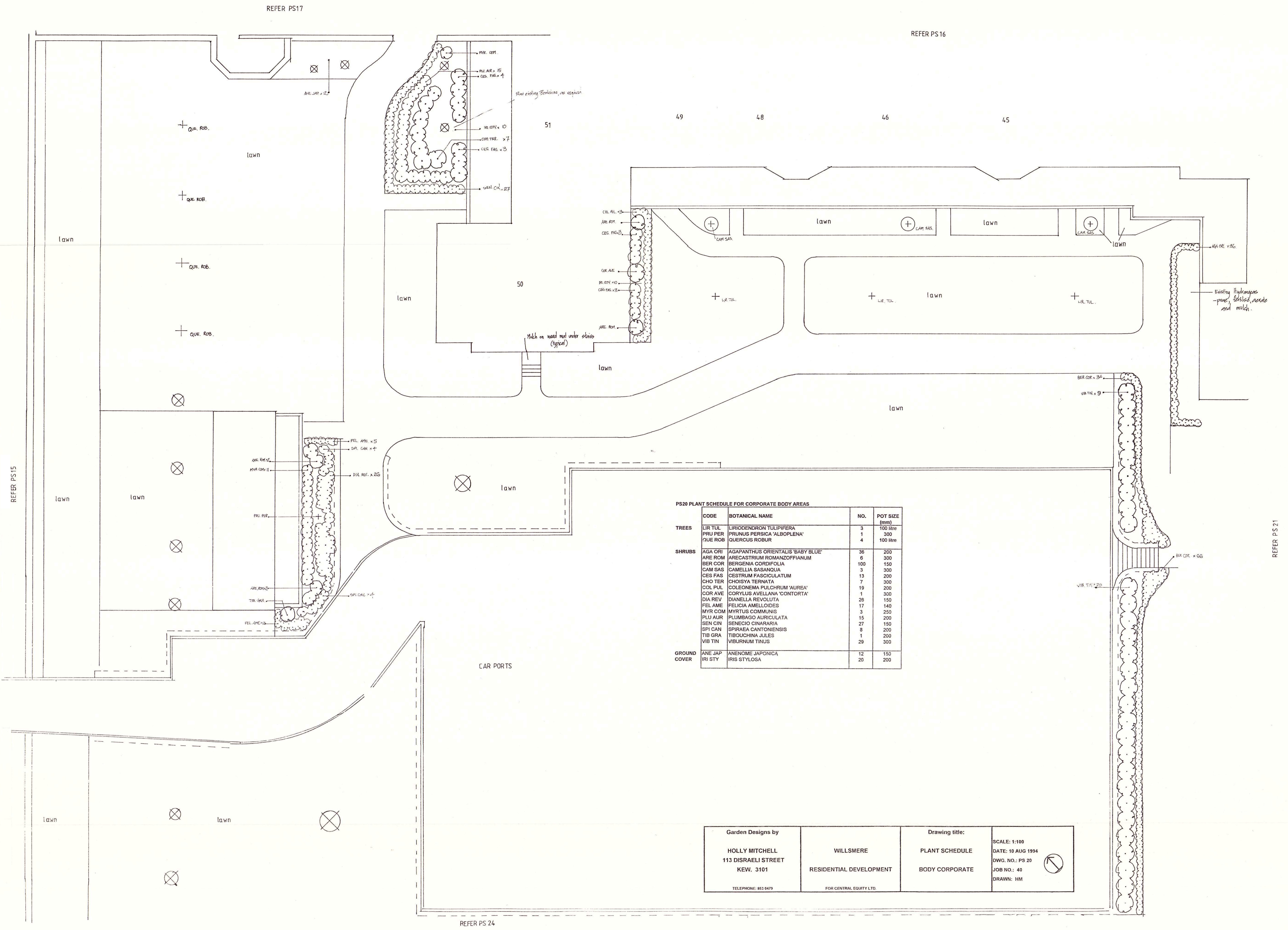
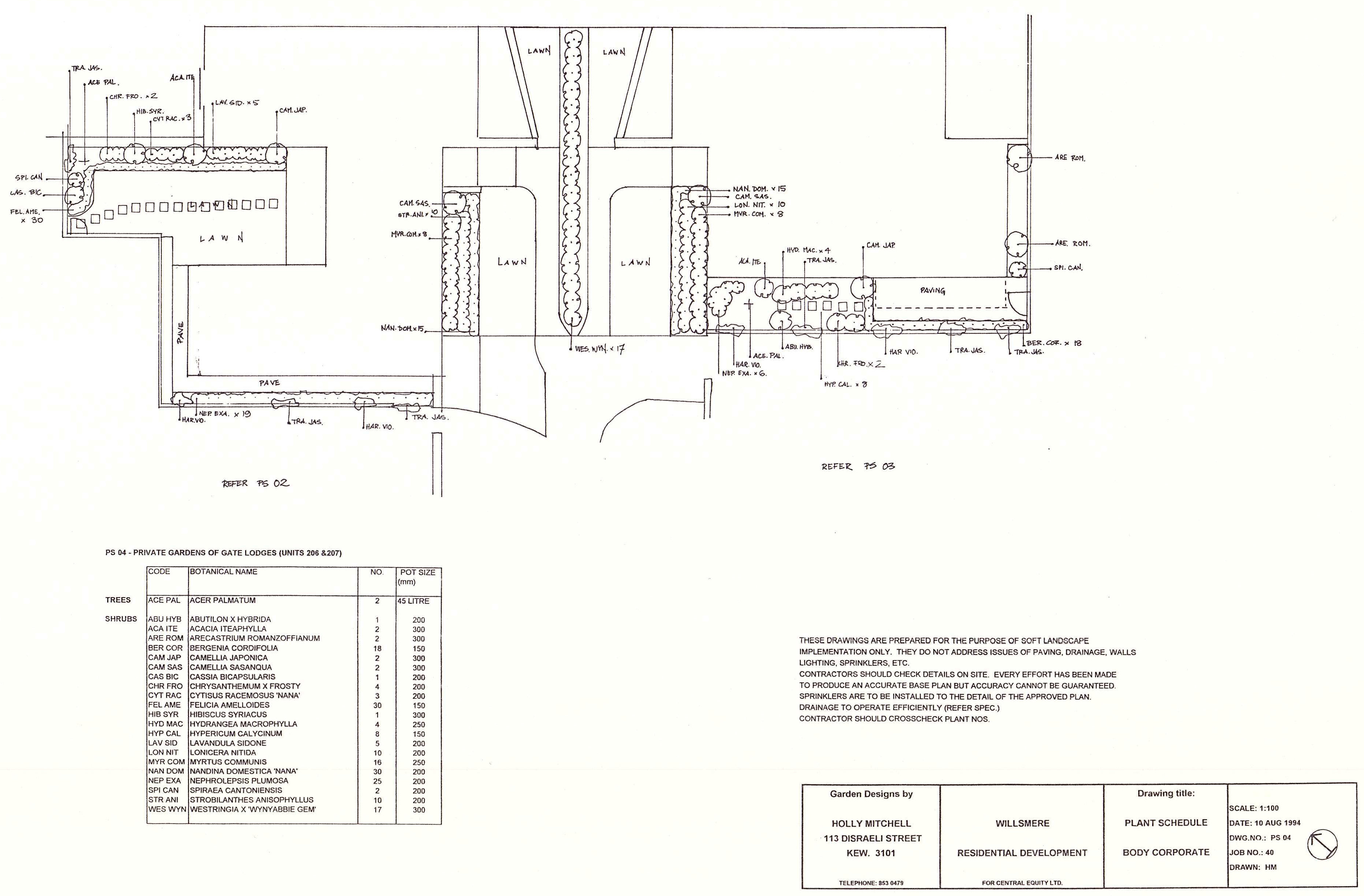
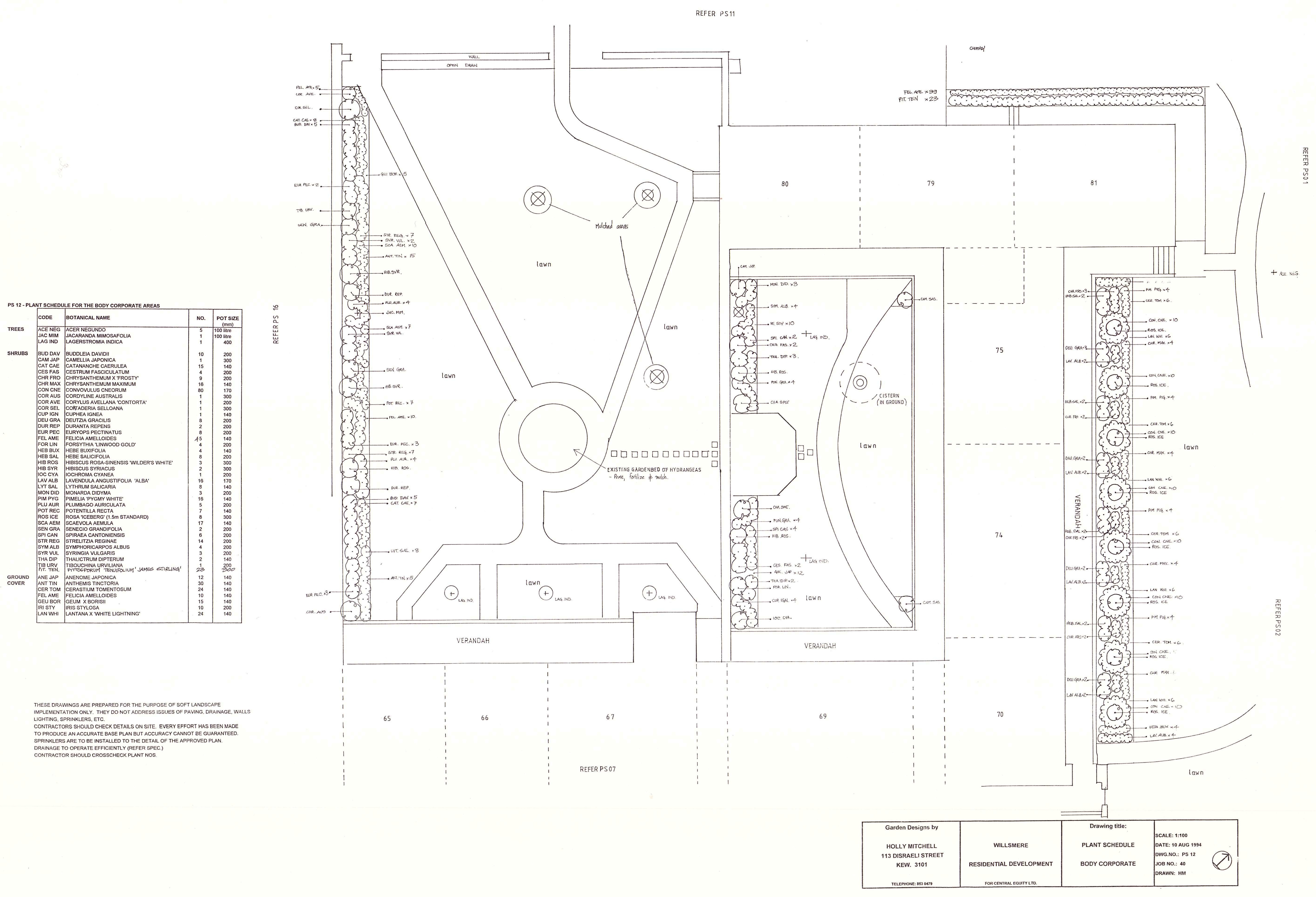
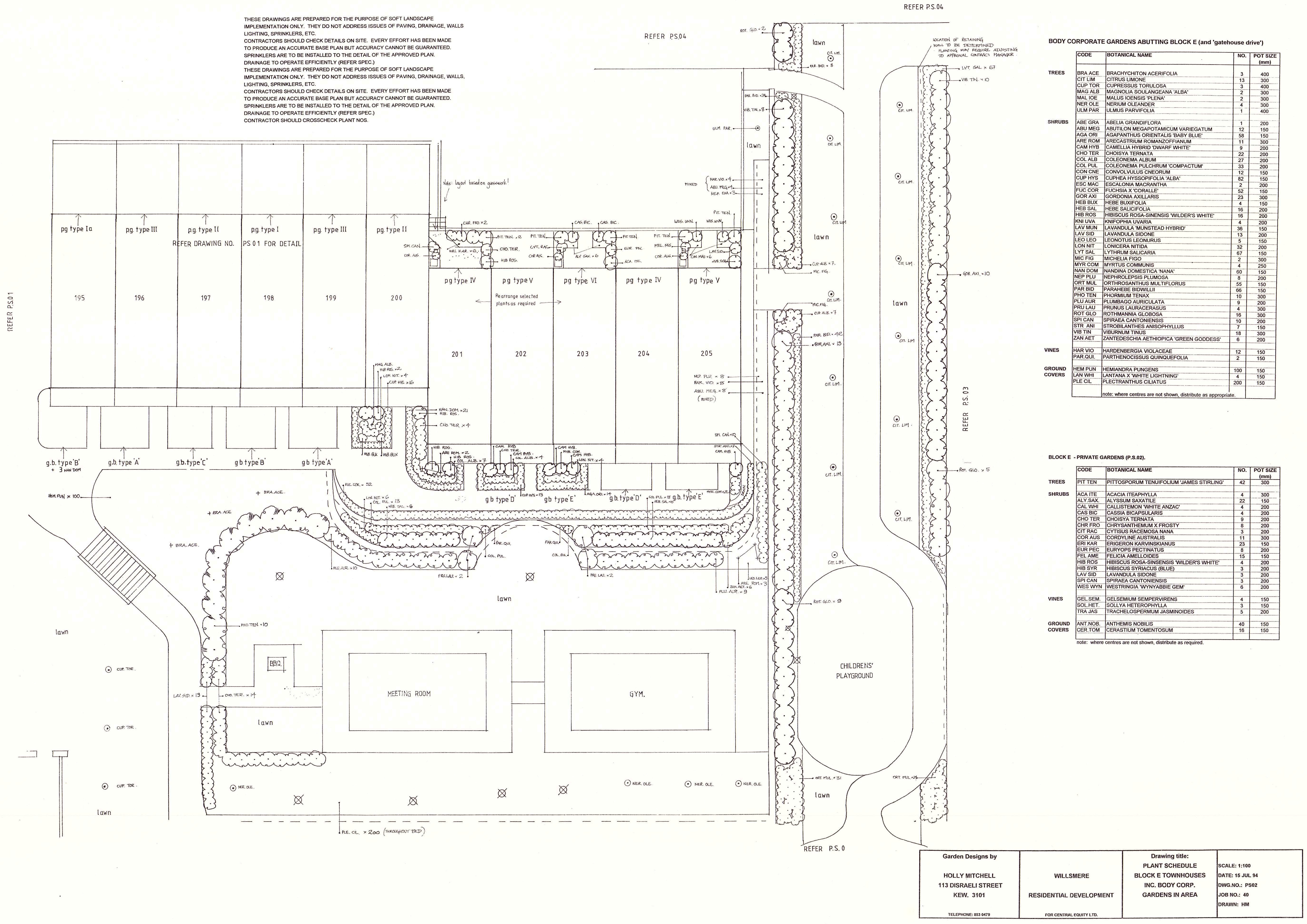
The 1994 master plans designed by Holly Mitchell have now been digitised. The whole site is divided into 27 areas which correspond to very detailed maps showing exactly which species of plants are to be planted, reference by 6-letter codes to adjacent tables.

This is an invaluable guide and should be used as the first point of reference when considering maintenance and repair, with few exceptions such as plants that have proven unsuitable, or may eventually have unacceptable impacts on safety or services (e.g. plumbing, paths, etc.) To keep a consitent theme across the estate, and to make the job of managing the gardens efficient, please note that modification of common gardens is not allowed without written permission. This includes the beds in front of the townhouses.

thumb PS00 Index

Index       PS01       PS02       PS03        PS04       PS05       PS06       PS07      
PS08 PS09 PS10 PS11 PS12 PS13 PS14 PS15
PS16 PS17 PS17a PS18 PS19 PS20 PS21 PS22
PS23 PS24 PS25 PS26 PS27      

To complement this master plan is the 1993/4 Landscape Report by Holly Mitchell that outlines the design philosophy of the site.

Willsmere has a very large and beautiful system of gardens surrounding the heritage buildings. Some of the trees have as much historical significance as the building itself, including listing on the National Trust register: http://vhd.heritagecouncil.vic.gov.au/places/71255 (Himalayan deodar cedar), http://vhd.heritagecouncil.vic.gov.au/places/71253 (peppercorn).

A comprehensive survey of all trees over 5 metres (about 350!) was conducted and reported in September 2019 to ensure appropriate management and replacement planning. These reports are separated as "internal" or "external" depending on location relative to the perimter walls. Tree identities are indexed by location meaning you can look up the botanical and common names. The reports can be downloaded here: Internal Trees; External Trees.

Get involved in the Willsmere Kitchen Garden!

The Willsmere Kitchen Garden (WKG) is a community garden located in Yarra Bend Park, adjacent to Willsmere. The WKG was established in 2017 as a collaboration between a group of residents from Willsmere and Parks Victoria. It provides a cherished place to share a vision of growing our own food, strengthening community bonds and sharing gardening knowledge. We take pride in its openness and welcome everyone in the community to enjoy our beautiful gardens, but ask that you respect the produce of individuals.

The first stage of the gardens is designed to pay homage to the formal gardens of the neighbouring asylum and the site’s history as a kitchen garden that supplied food for the patients and staff of the asylum. It features a central talking circle surrounded by seats that are designed to encourage conversations and community. Above-ground beds were donated by Bunnings Hawthorn in November 2018 and smaller community herb beds around the inner circle were created with recycled local materials. In 2019 a variety of herbs were planted for all to enjoy.

The inaugural committee have a vision and a grand plan for the future that involves a second set of above-ground beds mirroring the first, a heritage fruit orchard, a garlic farm, many more in-ground beds, grape vines, communal spaces with paving and chairs and tables as well as a series of workshops and community days designed to celebrate the space and share knowledge.

Location

Willsmere is located at 1 Wiltshire Drive Kew VIC 3101. Visitor access is via Yarra Boulevard.